| 구분 | 한옥기술개발 | ||
|---|---|---|---|
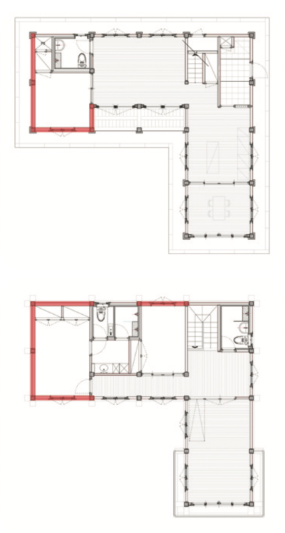
| 기술명 | 은평시범한옥_외벽_1,2층방 | ||
| 공정단계 | 벽체공사 | 적용기술범위 | 건식공법(따냄) |
| 설명 |
시범한옥에 사용된 벽체는 외벽의 경우 단열성과 친환경성, 시공성을 확보하기 위해 2×4, 2×6 규격의 목재로 골조로 만들고 친환경 단열재인 셀룰로오스와 왕겨숯, 유리섬유로 단열하였다. 친환경성을 위해 실내마감은 기본적으로 황토로 마감하였고, 각 실별 용도에 따라 한지벽지나 테라코트로 마감하였다. 내벽의 경우 각 실간 소음을 고려하여 차음 스터드로 골조를 세우고 유리섬유로 단열하였다. 이질재와 만나는 벽체의 기밀성 확보를 위해 외벽에서 벽과 만나는 기둥과 창방에 홈을 파고 벽체가 끼워 들어가는 접합부 디테일을 개발하여 적용하였으며, 기밀테이프와 실리콘 충진으로 기밀 성능을 보강하였다.
|
||
| 개념도/구성도 | |||
| 상세도 | |||
| 시공사진 | |||
| 관련 키워드 | |||
| 건물유형 | |||
| 단계별 | |||
| 적용부위 | |||
| 성능분류 | |||
| 재료분류 | |||
| 시범한옥 | |||
※ 해당 키워드를 클릭하시면 연관 신한옥 적용기술이 재검색됩니다.